Maison DaG
Construction d'une Maison Individuelle
Maître d'ouvrage : privé (particulier)
Equipe : Arnaud BIESSE Architecte
Nature du projet : Construction neuve
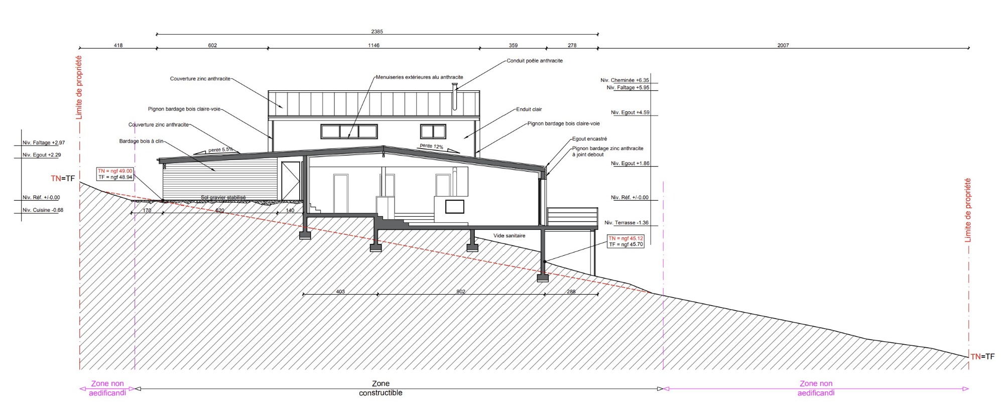
Lieu : Quimperlé (29)
Année : 2019
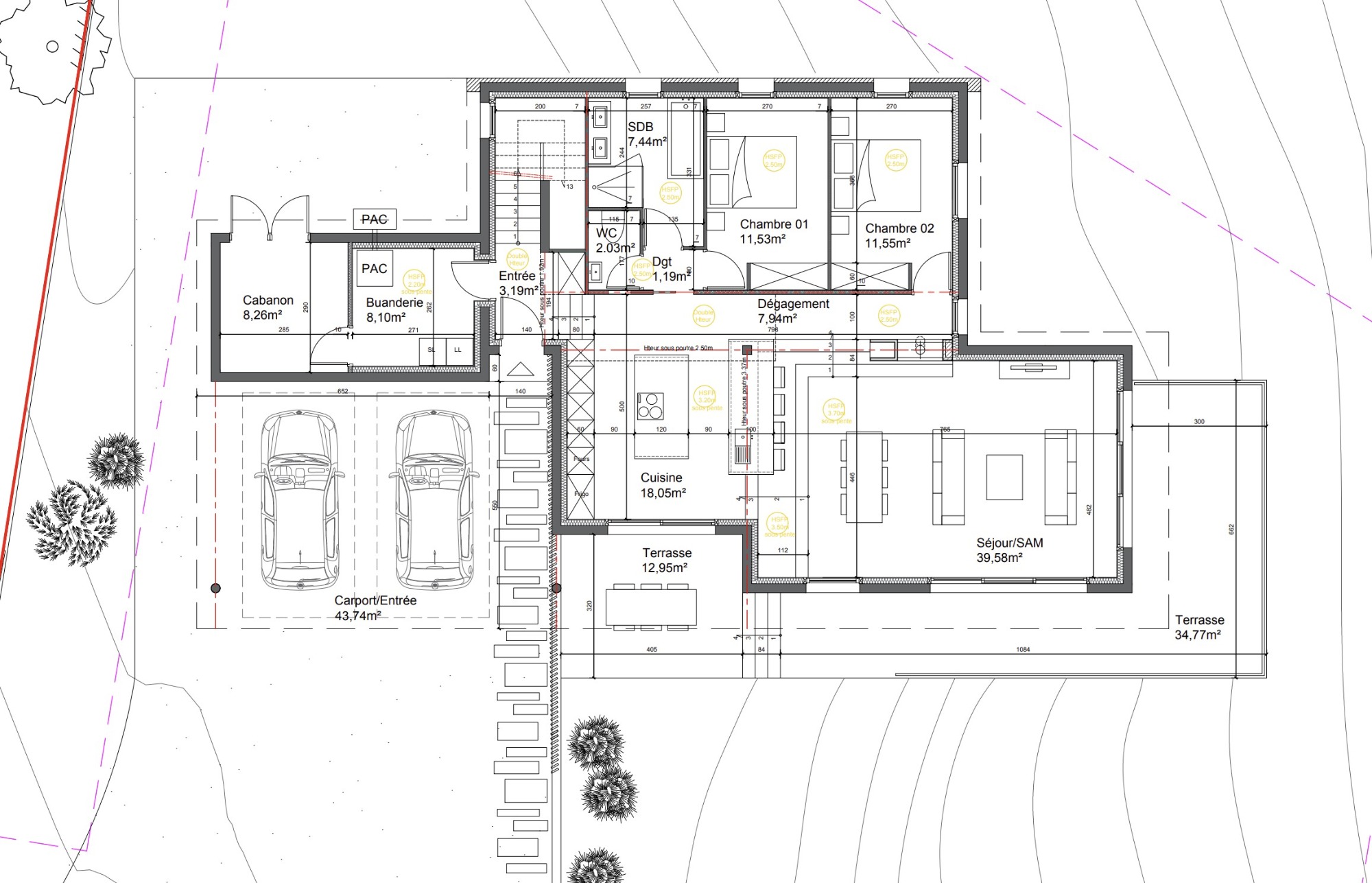
Surface plancher : 181m²
Surface parcelle : 1959 m²
Coût : ---
Mission : FAISA / ESQ / PC
Statut : PC accordé


























