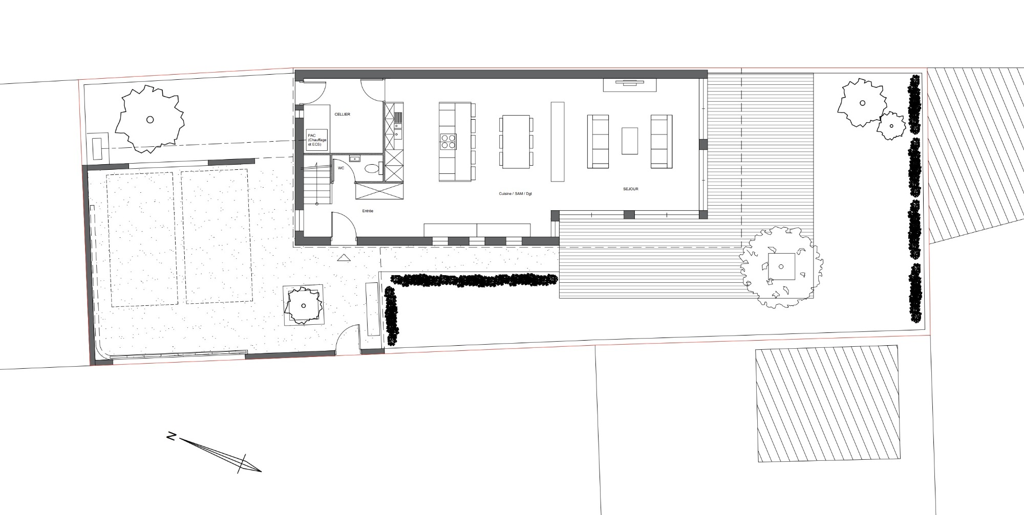
Maison CaC
Construction d'une Maison Individuelle
Maître d'ouvrage : Privé (Particulier)
Equipe : Arnaud BIESSE Architecte
Nature du projet : Construction neuve
Lieu : Concarneau (29)
Année : 2017
Emprise : 150 m²
Surface Plancher : 200 m²
Surface parcelle : 340 m²
Coût : ---
Mission : FAISA / ESQ
Statut : Projet abandonné












































