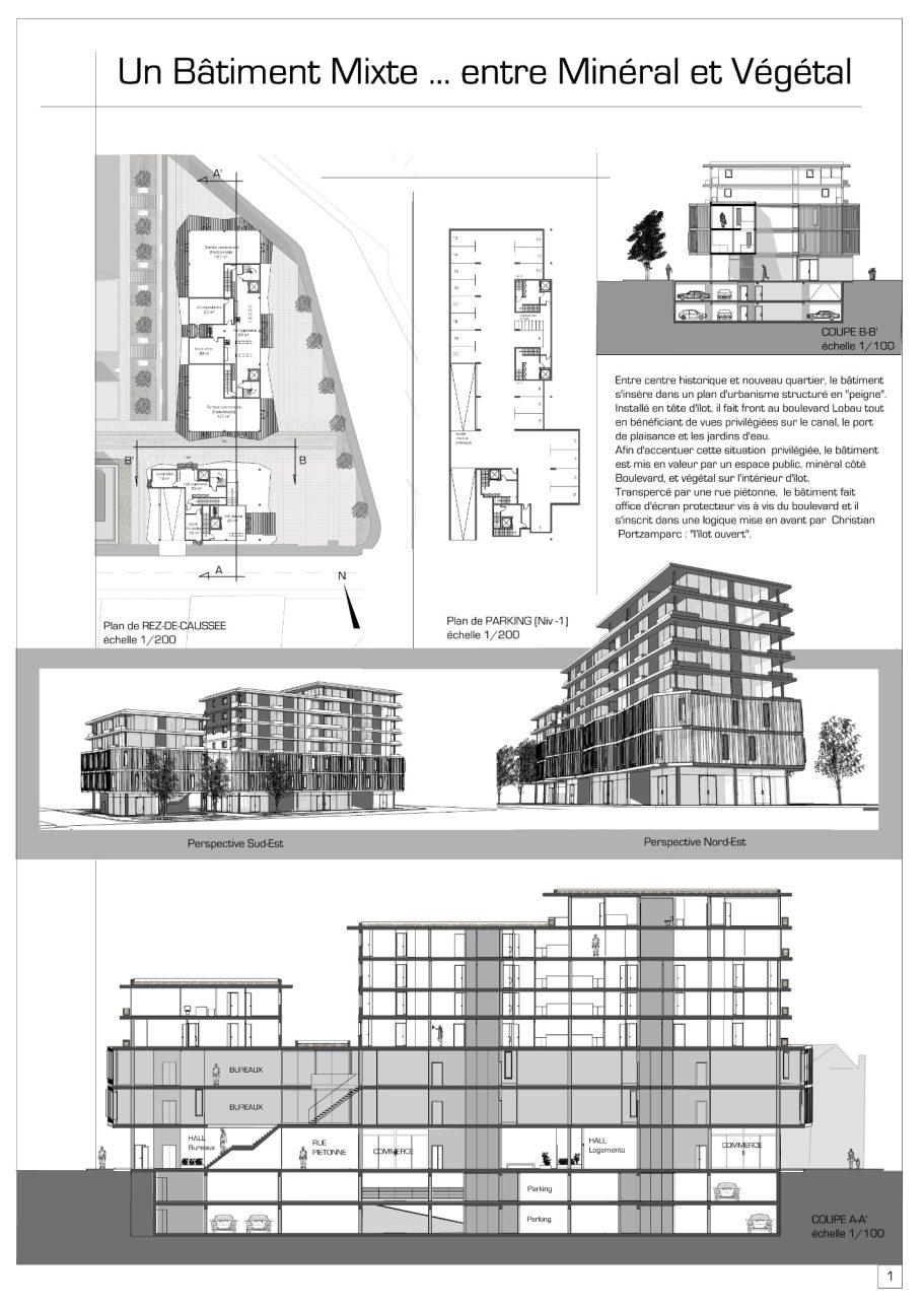
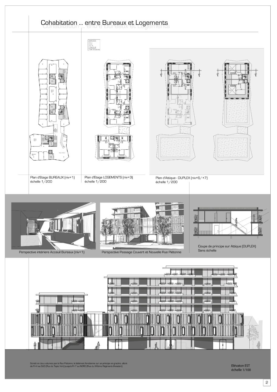
Construction d'un Immeuble d'habitation mixte R+7 et aménagements paysagers (Logement/Commerce/Bureau/Parking/place et jardin)
Maître d'Ouvrage : Privé (Professionnel)
Equipe : Arnaud BIESSE Architecte - ENSAN
Nature du projet : Urbanisme - Construction neuve
Lieu : Nancy (54)
Année : 2011
Surface plancher : 6720 m²
Surface parcelle : 3876 m²
Coût : 5 376 000 €HT
Mission : FAISA - ESQ
Statut : Projet abandonné






































