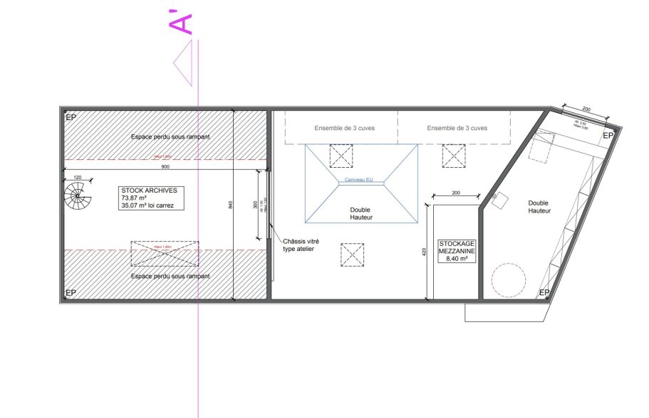
Construction d'une Brasserie Artisanale
Maître d'ouvrage : Privé (Professionnel)
Equipe : Arnaud BIESSE Architecte
Nature du projet : Construction neuve
Lieu : Riec-Sur-Bélon (29)
Année : 2019
Emprise bâtiment : 224 m²
Surface parcelle : 1510 m²
Coût : 355 000 €HT (Hors honoraires, études annexes, aménagement intérieur et process)
Mission : Complète
Statut : Projet livré


























